国道二号線からは、車で南に3分ほど。
周辺は田んぼが広がるのどかなロケーション。
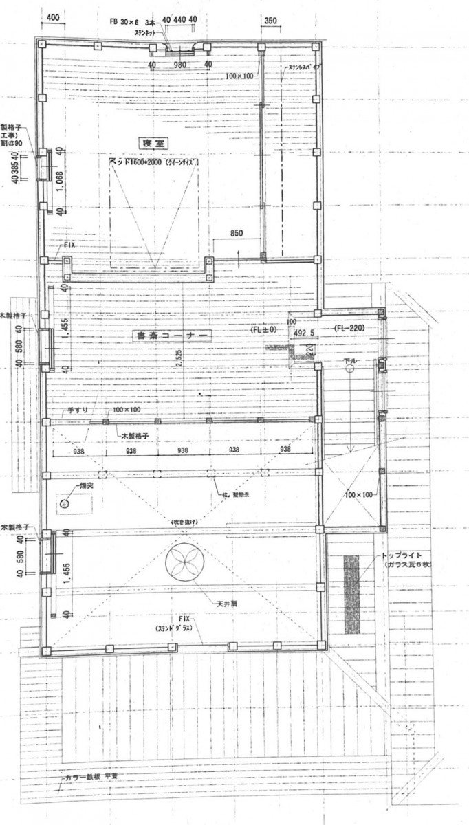
募集の棟は、母屋の隣のハナレ部分。
室内は以前に倉敷建築工房 楢村徹設計室によって改修済み。
玄関を入ると1階はワンルーム。
奥からトイレ、洗面室、キッチン(お風呂はありません)。
中央は吹抜けになっていて、
カウンターテーブル(水栓、シンク付)、薪ストーブ(残置物)、南面にはタイル床のサンルーム。
2階に上がるとオープンなスペース、その奥には個室があります。
事業用(店舗、事務所)としての募集です。
大きな音や、強いにおいの出る業種は不可。
詳しくはお問い合わせください。
*写真は前回募集時のものです。
*入居の決定は先着順ではありませんのでご了承ください。
*1階にエアコンは付いていません。(設置可)
*室内は土足不可
| ・賃料 | *終了しました /月・2LDK(1F:69.63㎡ 2F:37.79㎡) |
|---|---|
| ・所在地 | 岡山県岡山市東区升田 |
| ・No. | rent_1508 |
![]()
地図上のポイントは、実際の物件所在地を示すものではありません。
![]()
| ・物件種目 | 貸オフィス、貸店舗 |
|---|---|
| ・所在地 | 岡山県岡山市東区升田 |
| ・構造 | 木造 |
| ・築年月 | 不明 |
|---|---|
| ・設備 |
下水、プロパンガス |
| ・取引態様 | 仲介 |
| ・情報更新日 | 2022.1.7 |


〒719-1131 岡山県総社市中央2-23-21
TEL&FAX 0866-95-2833
最寄り駅・・・JR総社駅
最寄り駅からの徒歩での所用時間・・・徒歩6分
営業時間 OPEN 9:30 / CLOSE 17:30 [水・日曜・祝日定休]
※内見・面談は、事前に電話かメールで
日時の予約をいただけると確実です。
